
|
The Howard Project Custom Kuhns Bros Log Home
Delivery July 7, 2006
|
|
Authorized Sales Representatives for Kuhns Bros Log Homes |


|
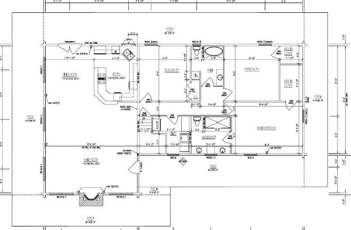
This is a custom home, ranch style with a wrap around porch around the entire home!! 2088 Square feet on the upper floor and a full basement with another 2088 SQFT. Over 1700 SQFT of covered porches. |
|
This is a picture of the site, and I just happened to snap a picture just after about 3 sticks of dynamite were set off blasting out the basement!!! |
|
A picture of the basement area, after the dynamite blast!! |
|
Another picture of the basement site. |
|
Basement after the walls and floor is poured. Looking out toward the walkout end |
|
Basement looking back toward the closed end. You can see the “safe room” here. |