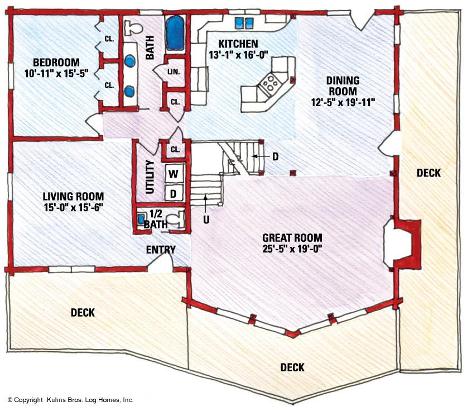
Culbertson
2183 Square Feet — 2 Bedrooms — 3 Baths
Authorized Sales Representatives for Kuhns Bros Log Homes
Home
About Us
Contact Us
Calendar of Events
Current Projects
Past Projects
Order Planning Kit
More Photos
Related Links
Log Home Design Center
Signature Design Plans
Destinations Designs
Custom Design Plans
Where Do I Start
“The Log Blog”